Telefono: +39 3491059619

Rif. 744 DP
Appartamenti di prossima realizzazione

Descrizione

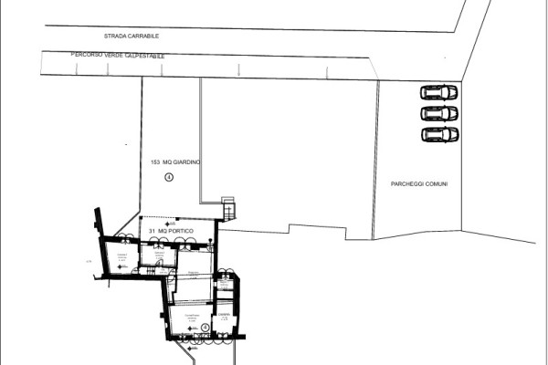
Nel Comune di Seravezza più specificatamente in Pozzi saranno realizzati sette appartamenti di nuova ristrutturazione, di varie metrature con giardino e posti auto. Si acquista da "Privato", personalizzabili, buone rifiniture e con tutti i comfort moderni ma realizzati in stile rustico si varia dal piano terra al secondo piano o terratetto. Inizio lavori previsto per settembre 2026 per essere terminati entro fine anno 2027.

Possibilità di finanziamento e detrazioni dei bonus personalizzabili tramite consulente fidelizzato senza impegno!!

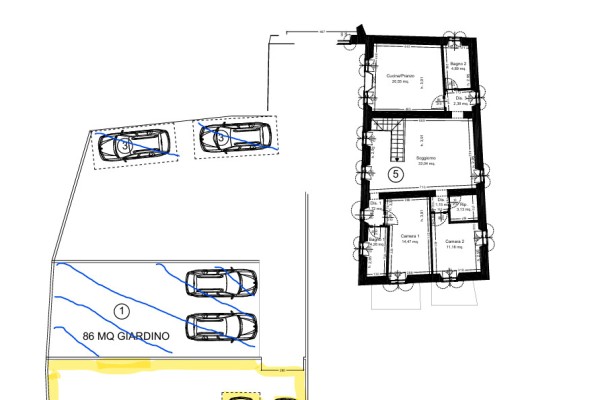
Appartamento 1, di mq 78,73 disposto al solo piano primo rialzato con giardino di 86mq comprensivo di due posti auto rich: €.210.000

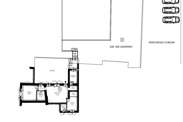
Appartamento 2, di 105 mq disposto al solo piano primo rialzato con circa 40 mq di terrazza e giardino di 250 mq privato con posto auto in zona comune  rich: €.360.000

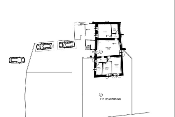
Appartamento 3, di mq 110 disposto al solo piano terra con giardino di 200mq e due posti auto in zona comune rich: €.300.000

Appartamento 4, di mq 135 disposto al solo piano terra con giardino di 250mq e due posti auto in zona comune rich: €.360.000

Appartamento 5, di 116 mq disposto al solo piano secondo con giardino di 137 mq comprensivo di posto auto  rich: €.290.000

Appartamento 6, terratetto indipendente di mq 163 disposto su tre livelli con giardino di 90mq e due posti auto in zona comune rich: €.330.000

Appartamento 7, di 51 mq disposto al solo piano primo rialzato con giardino di 77 mq e posto auto in zona comune  rich: €.160.000

Prezzo

€ 160.000

Caratteristiche

Tipologia:

Appartamento In Villa

Contratto:

Compravendita Residenziale

Località:

Seravezza - Pozzi

Posizione:

Superficie (mq):

100

Terreno (mq):

50

Riscaldamento:

Autonomo

Garage:

PostoAuto

Giardino:

Privato

Condizionatore:

Si

Condizioni:

Nuova Ristrutturazione

Dist. mare (m):

6000

Dist. centro (m):

2000

Cl. Energetica:

A

Galleria fotografica

Richiedi informazioni su questo immobile

* Nome e Cognome:

* E-mail:

Telefono:

Oggetto:

Messaggio:
Presto il consenso al trattamento dei miei dati personali come specificato nella pagina dell' informativa Privacy

Presto il consenso a inviare al mio domicilio o al mio indirizzo di posta elettronica, periodica documentazione sulle tariffe e sulle offerte praticate.
Controllo Antispam*: Qual è il numero tra 6 e 8?